9月13日上午,继博鱼网页登陆_博鱼(中国)博鱼网页登陆_博鱼(中国)建设板块2016年半年工作会议在博鱼网页登陆_博鱼(中国)企业大厦顺利召开后,博鱼网页登陆_博鱼(中国)公司组织各区域公司回汉人员,在武汉地区标杆项目万科汉阳国际项目部进行现场交流。
万科汉阳国际项目部位于汉阳龙阳大道和陶家岭路交汇处,汉阳国际营销大厅南面,共3栋超高层住宅,其中1#、3#为框剪40F,2#楼框剪45F;占地面积1.7万方,总建筑面积8.2万方,其中住宅面积约7.2万方。
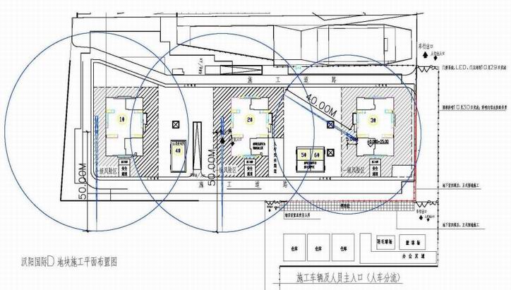
该项目在管理标准化上从现场布置、三区分离、外墙五同步、工期节省、项目策划、放线管理标准化、楼层移交、总分包管理、平衡施工合理穿插、正式市政园林先行绿色等各个方面着手提前策划与实施。

在安全管理标准化上从定型化防护、安全晨会制度、安全实施日检、周检;现场不仅采用安全美观的全钢爬架,而且另一个尤为突出的亮点:在每一位工友的安全帽上,都装设一个可扫描的智能芯片,里面装载每一位进入施工现场作业人员的姓名、年龄、工种及进出入时间等,一旦出现突发状况,第一时间进行定位并报警提醒。
在质量管理标准化上该项目在每个分项工程施工前,均编制详细可行的施工方案,并进行全面的技术交底;并且现场采用铝模等先进推广技术。
在文明施工管理标准化上从工友统一的安全帽与工服、施工现场的喷淋降尘与PM2.5检测、楼层垃圾及时工完场清、楼层设置临时厕所、正式消防管道当临时消防管道使用、场地硬化与绿化美化等进行统筹安排。
在项目管理创新上从铝模、外墙免抹灰、内墙薄抹灰、水泥基自流平、PC工艺(楼梯隔墙、阳台、空调位、消防栓内隔墙、屋面喷涂一体化)及钢筋工厂化加工进行全面推广。
该项目部娄斌武经理说:公司的质量、安全文明标准化正在持续推进中,我们项目部希望以本次内部交流会为契机,在全博鱼网页登陆_博鱼(中国)公司范围内进一步推进质量、安全文明标准化建设,逐步实现“筑品质博鱼网页登陆_博鱼(中国)、成百年基业”的企业愿景,为建设“美好家园” 而奋斗。
各区域公司参与交流人员纷纷表示通过此次交流,学习到:安全与质量在分析上必须要与当前生产形势相结合,真正做到形势分析融于生产、指导生产、促进生产。在目前安全形势分析的基础上,要积极探索如何创新亮点工程运行模式、如何激发全员积极性与主动性,以求达到人人参与安全的目的。要加强安全形势分析亮点工程的保障体系和长效机制建设,加大安全生产的宣传教育力度和奖惩力度,进一步做好活动开展综合评价和效果考核工作,对不严肃对待亮点工程和敷衍走过场的班组加大惩罚力度,对于能主动发现问题和提出有效合理化建议的班组着重奖励,确保公司亮点工程安全长效发展。
为把博鱼网页登陆_博鱼(中国)项目施工过程中对工程质量、安全文明、环保创新等方面的管控优势在博鱼网页登陆_博鱼(中国)博鱼网页登陆_博鱼(中国)所有项目上进行一个推广,项目部现场管理人员与工程部、安全部、技术部等各个部门之间,进行了全面的交流和深入的策划。各区域公司参与交流人员均对本次交流会给予高度好评!大家均希望通过此次交流,在多角度、全方位去展示博鱼网页登陆_博鱼(中国)在工程上的精益求精与不懈努力,每一位博鱼网页登陆_博鱼(中国)人,将一直在路上,始终坚持着“筑品质博鱼网页登陆_博鱼(中国),成百年基业”的企业愿景!


企业邮箱
OA登录
财务系统
印章系统